Leistung
Statik
Die Statik und Tragwerksplanung ist im Bauingenieurwesen die Beschreibung für den Nachweis der Standsicherheit von Gebäuden und baulichen Anlagen. Es werden statische Berechnungen für Neu- und Umbauten von Objekten des allgemeinen Hochbaus gefertigt, unabhängig von der Art der Bauweise. Ebenso ist die Berechnung von Sonderobjekten möglich.
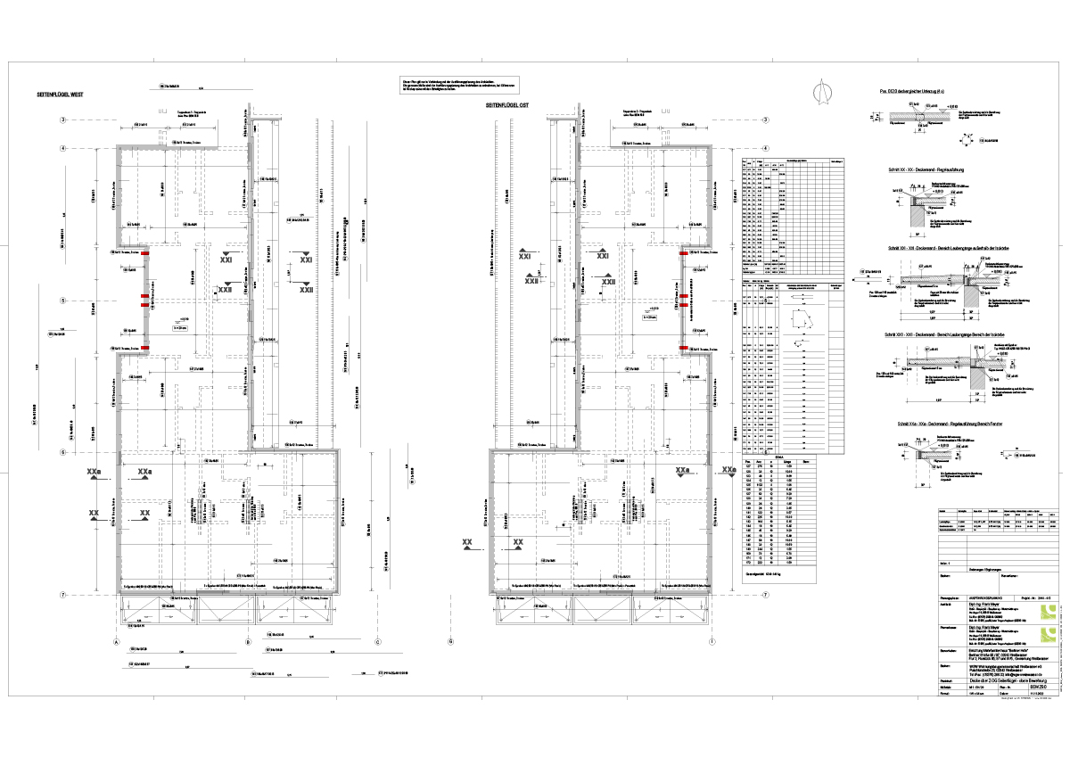
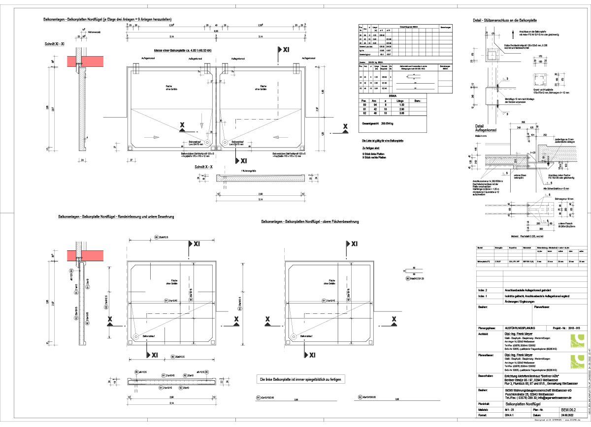
Für die Aufstellung der Berechnungen steht uns spezielle Software zur Verfügung, die es ermöglicht auch komplizierte Konstruktionen berechnen zu können. Ergänzend zu den Berechnungen werden die erforderlichen Schal- und Bewehrungspläne, Verlege- und Stücklisten gefertigt, die als Grundlage für den reibungslosen Ablauf der Bautätigkeit auf der Baustelle unerlässlich sind.


